Mobles

L’alçada dels armaris superiors de la cuina

L’alçada dels armaris superiors de la cuina
Continguts
  1. Què determina la ubicació?
  2. Opcions estàndard de jocs de cuina
  3. Dimensions dels armaris de cuina de paret
  4. A quina distància del terra he de fixar-me?

Per planificar correctament l’àrea útil de la cuina, heu de triar correctament un conjunt de cuina. Perquè són precisament els mobles que ocupen la major part de la superfície útil. I el problema de la manca d’espai lliure depèn no de les cadires ni de la taula, la nevera o el sofà, sinó del nombre i mida dels armaris. Un aspecte important és l’alçada dels armaris. A l’article ens centrarem en mostres muntades, les seves dimensions i formes.

Què determina la ubicació?

A l’hora d’escollir l’alçada dels armaris superiors, cal tenir en compte diverses condicions que afecten la seva localització.

El més important és la comoditat per a aquells que tenen més control sobre la cuina.

Els auriculars consisteixen bàsicament en dos nivells: inferior i superior. L’altura de muntatge d’estructures fixades al 2n nivell sovint està determinada pel creixement de la persona que es dedica principalment a la cuina.

És important que els prestatges inferiors de l’armari superior estiguin aproximadament al nivell dels ulls. A continuació, es proporciona accés gratuït a productes i objectes especialment usats. En cas contrari, haureu d’utilitzar algun tipus d’estand.

També és indesitjable armaris massa baixos. Això es deu a inconvenients quan es treballa al taulell (sobretaula, tauleta) i a menors possibilitats de disposar tot tipus d’objectes (prestatges per a condiments, penjadors per a estris de cuina, etc.) a la paret entre els nivells dels armaris.

També és de gran importància que sovint es posin diversos electrodomèstics sota els armaris de paret. Si el pla inferior del mòdul està situat a prop de la superfície de treball, la seva aparença externa dels equips que funcionen és susceptible de patir (per no parlar d’un alt grau de perill d’incendi). El vapor d’una cuina lenta o una bullidora espatllarà el folre en poc temps.

Una importància considerable a l’hora d’escollir la col·locació de mòduls i les seves dimensions és el nivell de sostres a la cuina. Les grans cuines donen l'oportunitat al dissenyador d'organitzar tots els mobles, inclosos els bisagrats, centrats en els conceptes de confort i estètica. Quan la superfície és petita, heu d’ordenar armaris més petits o bé col·locar els estàndards a la mínima alçada de la superfície de treball.

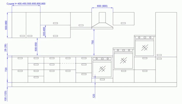
A l’hora de calcular l’alçada de fixació dels mòduls, també es proporciona la ubicació i la finalitat de la instal·lació. Es poden instal·lar no només a sobre del taulell, sinó també en altres zones, per exemple, per sobre d’un capó o d’un refrigerador. Com a resultat d'això És necessari navegar pels estàndards d’armaris de cuina que ofereixen els fabricants.

Opcions estàndard de jocs de cuina

Com ja s’ha dit, els mòduls de mobiliari de cuina es poden situar als nivells inferior i superior. Les seves dimensions estàndard es van establir tenint en compte els valors mitjans de les característiques físiques d’una persona, principalment la seva alçada.

GOST regula els indicadors per a determinades mides d'objectes interiors instal·lats a la cuina:

  1. alçada del mòdul (inclosa la placa de taula) - 85-90 cm;
  2. profunditat de treball de la coberta de la taula - 60 cm;
  3. la profunditat interna del gabinet inferior no és inferior a 46 cm;
  4. profunditat interna de l’armari de paret: no inferior a 27 cm;
  5. alçada des del sòl fins a la prestatgeria superior del mòdul muntat: no més de 190 cm.

De fet, les mides que s’ofereixen a l’usuari del moble solen ser lleugerament diferents dels paràmetres prescrits.

Dimensions dels armaris de cuina de paret

Les dimensions estàndard dels armaris penjats de la cuina tenen els paràmetres següents: poden ser de 36 cm, 72 cm o 92 cm d'alçada.

La profunditat estàndard dels armaris de paret de la cuina arriba als 30 centímetres. Si necessiteu mòduls amb més profunditat, haureu de realitzar un producte tal per encarregar.

Quan l’armari es requereix amb menys profunditat, no només s’haurà de fer per encàrrec, sinó que també es tindran en compte les dimensions d’aquells articles que hi seran continguts.

En alçada, els armaris de cuina no tenen criteris estàndard. Els fabricants de mobles de cuina no contemplen aquestes característiques d’una altra manera, o millor dit, si voleu comprar un conjunt de cuina estàndard en un conjunt complet, aleshores els armaris articulats d'alçada poden ser de 25 a 100 centímetres.

El canvi de les dimensions en alçada, profunditat o amplada de l’armari penjat afectarà sens dubte el preu.

La distància entre les prestatgeries de l’armari pot ser de 20 o 30 centímetres. Tot i que els estàndards existents estableixen l’altura màxima de muntatge de l’element superior a 190 centímetres, però aquest valor també es pot superar. A més, en un esforç per explotar tota la zona d'una cuina petita de la manera més funcional possible i muntant estructures gairebé fins al sostre, moltes es plantegen conscientment amb possibles dificultats.

Malgrat els estàndards generalment acceptats per a armaris de paret, tenint en compte la comoditat del seu ús, si es vol, el propietari pot instal·lar estructures superiors. El funcionament freqüent dels prestatges superiors no és gaire convenient, especialment per a aquells que no van pujar alts.

No obstant això, per situar articles i productes que no s’utilitzen tan sovint, és força pràctic.

Les solucions de disseny per a un conjunt de cuina inclouen diverses opcions per muntar estructures de parets:

  • en un sol nivell;
  • a diferents distàncies de la superfície de treball i del sostre.

Per descomptat, si podeu demanar mobles amb els vostres paràmetres, podeu tenir en compte totes les necessitats i maximitzar la funcionalitat de la zona disponible.

A quina distància del terra he de fixar-me?

Per poder treballar còmodament a la cuina i els electrodomèstics s’adapten al taulell, no cal penjar l’armari per sota de 45 cm de la superfície de treball. Si el creixement de l'amfitriona supera la mitjana, aquest indicador es pot augmentar fins a 60 cm.

Hi ha una dependència de l’altura de muntatge dels mòduls (part inferior) del creixement humà:

  1. amb alçada humana 175-178 cm la distància des de la superfície inferior dels armaris penjants fins al terra és de 150 centímetres;
  2. amb creixement 185 cm - des de la superfície inferior dels armaris penjants fins al sòl 160 centímetres;
  3. a 200 cm - la distància al sòl és de 175 centímetres.

En instal·lar armaris en els quals s’integren estructures d’escapament, els estàndards d’ubicació d’aquest equip es determinen.

A les cuines equipades amb fogons de gas, les campanes de la cuina no es poden muntar a menys de 75 cm per sobre de la placa de cuina. Quan es tracta de estufes elèctriques, en aquest cas és recomanable suportar almenys 65 centímetres.

    Els armaris superiors es poden fixar a la paret, on no hi ha armaris de sòl i superfície de treball. Amb aquesta opció, es guien per l'ergonomia i el disseny de tots els auriculars. El mateix enfocament s’utilitza quan s’instal·la mobles sobre electrodomèstics (microones, forns, refrigeradors, etc.).

    Al calcular la distància entre la superfície de treball i la part inferior del mobiliari per penjar, primer és necessari confiar no en els estàndards, sinó en els vostres propis desitjos. Fent cas omís dels estàndards establerts, alguns col·loquen armaris a una alçada superior als 70 centímetres, si se senten més còmodes.

    Els armaris superiors col·locats no segons les regles poden complicar significativament el procés de cocció de l’amfitriona. Això pot comportar no només una sobrecàrrega aviat, sinó que també amenaça lesions. Hi ha casos freqüents quan el cuiner enganxa el cap a l’armari. I el motiu d’això és només la seva ubicació baixa.

    L’alçada dels armaris penjats és un component important. Determina fins a quin punt la cuina serà funcional. Aquest indicador es proporciona fins i tot quan es crea un projecte. En establir totes les mides, es repeleixen pel fet que les mantindran.

    Vegeu a continuació per obtenir més detalls.

    Escriu un comentari
    Informació proporcionada amb finalitats de referència. No et medicis. Per a la salut, consulteu sempre amb un especialista.

    Moda

    Bellesa

    Descansa