Restroom

Toilet dimensions: standard and minimum, useful recommendations

Toilet dimensions: standard and minimum, useful recommendations
Content
  1. Norms
  2. Typical dimensions in residential buildings
  3. Sizes of combined toilet with bath
  4. What can be in a private house?
  5. How to calculate?

Determining the minimum size of the restroom is one of the most important tasks in planning the entire living space. Many homeowners are rather frivolous in calculating the dimensions of a bathroom, but its area is extremely important, since it makes it possible to create an ergonomic space in this functional area.

Norms

Not the last role in creating a comfortable and functional home is the bathroom. It largely depends on its size:

  • how you will place all the basic plumbing structures (bath, shower cabin, as well as a sink, wash basin and bidet);
  • how engineering communications will be laid;
  • what types of finishes can be used.

The minimum permissible area of ​​toilets, as well as other parameters related to the dimensions of these rooms, are legally regulated through state standards and SNiPs - they set the footage of bathtubs and toilets in residential apartments, as well as acceptable parameters for public buildings for various purposes.

Starting redevelopment work in your home, should carefully study the entire legal framework in this area. Otherwise, you run the risk that the result of your work may be recognized as not complying with applicable standards, illegal and subject to dismantling.

Please note: for Belarus, as well as Ukraine and a number of other CIS countries, the norms of SNiPs regarding the size of bathrooms can significantly differ from those approved in our country. The differences may have standards for some regions of the Russian Federation.

A certain group of restrictions also concerns the features of the placement of sanitary rooms in apartment buildings. So, you may be denied approval of redevelopment if you intend to place a restroom over the kitchen or over the living area, only 2-level apartments with a large footage can become an exception.

The only option when the construction and redevelopment of the toilet can be carried out without taking into account the standard - this is work in a cottage, in a private house or in a country house. If you are not going to connect the intra-house communications to the common sewer riser and the central water supply system, then there are no requirements for the exact observance of the current standards.

We will figure out what is the optimal size of the sanitary room. Dimensions of the hygienic premises in the apartment:

  • depth - not less than 1.2 m;
  • width - not less than 0.8 m;
  • ceiling height - not lower than 2.5 m;
  • the distance from the toilet bowl to the inclined plane of the roof (for toilets furnished in the attic) - 1.05-1.1 m;
  • ceiling height in the hallway near the entrance to the restroom - not less than 2.1 m.

In addition, recommendations are made regarding the placement of plumbing and the distances between the individual elements of the bathroom:

  • between the toilet bowl and the bidet - from 25 cm;
  • in front of the bath bowl - from 70 cm of unallocated area;
  • near the toilet - from 60 cm;
  • on both sides of the toilet - from 25 cm;
  • in front of the sink - from 70 cm.

In accordance with SNiPs, the lavatory door can only open outward; it is not recommended to install structures that swing open inward.

Exiting the toilet should lead either to the entrance hall or to the corridor - it is not recommended to place it near the kitchen, dining room or living rooms.

Separate regulation is subject to bathrooms, installed for users with disabilities. In accordance with the accepted standards for the disabled, the parameters of the restroom should have the following dimensions:

  • width —1.65 m;
  • depth - 1.8 m.

According to the law, the installation of additional plumbing equipment (bidets and urinals) is optional, but their installation is desirable. In addition, it is necessary to choose the optimal location of the plumbing, so that the user in a wheelchair can freely get there without outside help.

    Required the installation of handrails near the toilet bowl and washstand, the optimal height for their placement is 75 cm.

    It is advisable that from the side where the person is transferred from the chair to the toilet, the latter should be folding.

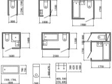
    Typical dimensions in residential buildings

    Distinguish between standard and minimum sizes.

    Standard

    In previous years, restrooms in houses did not differ in large footage. For example, in Khrushchev’s, the dimensions of the combined room (bathroom plus toilet) did not exceed 3.8 meters. In the houses of a modern layout, large areas are allocated for a hygienic room. For instance, even in small apartments the footage of the bathroom is approximately 4 square meters. m, for apartments with an area of ​​more than 60 square meters. m footage of the hygienic premises can reach 6 square meters. m

    The toilet in luxury housing occupies a space of 9 square meters. m - This area is quite enough to equip the room with maximum comfort and equip it with all the basic sanitary ware, as well as modules for storing cosmetics, household chemicals and dirty things. In such rooms, an ironing board can also be placed on which you can iron bedclothes and personal belongings of the owners.

      If we are talking about new buildings, then, regardless of the size of the apartment, developers adhere to several basic rules:

      • in one-room dwellings and studios, the parameters of the bathroom should be such that users can freely place in them a bath with a washbasin, as well as a toilet;
      • in residential apartments, consisting of two or three rooms, it is usually supposed to equip separate bathrooms.

      Minimum

      In small families, as well as in private housing of the old type, the size of the bathrooms can be much lower than the current standards - usually their footage does not exceed 1.8-2 square meters. m

      However, even in this case, you can correctly plan the space so that the room performs all its functions. For example, in a 1x1 m lavatory, space can be saved by angular placement of the toilet installation, thereby freeing up space for a sink and even a small cabinet with shelves.

      The layout of 1x1.5 is already more convenient, here the location of the toilet does not hinder the installation of the washstand at the entrance.

      Tip: if the length of the toilet allows, you can hang the washing machine over the toilet. In this version, the installation will be located under the machine, and the bowl should not move 15-20 cm away from the wall, but 45-50 cm to the depth of the washing machine.

      Sizes of combined toilet with bath

      The footage of the combined restroom in accordance with the accepted standards should provide for the possibility of installing a bathtub or shower with a tray, as well as the installation of a washstand and toilet bowl in compliance with the recommended distances between the individual elements of the room indicated in SNiPs.

      It should be noted that combined sanitary facilities not for panel buildings. The reason for this is that in such buildings, sanitary cabins are used to equip the bathroom - these are ready-made blocks assembled at the factory that are simply built into the structure of the residential building. In accordance with the accepted layout the sanitary cabin is a separate bathroom with space for the toilet, as well as a zone for the wash room, compartments are divided among themselves by a continuous partition. The dimensions of the cabins in panel construction are standardized, the location of the washstand and bathtub in them complies with existing standards.

      In brick housing construction, the combined bathroom is equipped exclusively in one-room dwellings, while the meter should allow the installation of all the basic plumbing.

      What can be in a private house?

      A bathroom, arranged in a cottage or in a small private house, does not have any restrictions, its dimensions depend only on the personal preferences of the owner, as well as on the technical capabilities of the room as a whole.

      However, this applies only to those situations if the restroom is located inside the house. If you install an outdoor toilet, you will have to pay special attention to the choice of place, since in this case certain rules and requirements also apply.

      SNiP establishes the following rules for choosing the location of the drain pit:

      • the closet should be at least 10-12 m from any residential building;
      • the sewage accumulation zone should be removed no less than 25 m from the drinking well or stationary water source;
      • the toilet area should be 1 m or more from the demarcation fence;
      • the outdoor bathroom should be located at least 12-13 m from the hozblok, cellar and basement;
      • the nearest fruit trees should be at least 4 m away.

      In order to correctly determine the parameters of street toilets, first you need to think about the very type of construction of such a bathroom. Most often, they use the option for a village toilet, which involves a drain hole. In more modern houses, a backlash is made out, it involves the installation of a septic tank with reliable waterproofing, this design prevents clogging of groundwater and land.

      A less common solution is a dry closet, it is installed inside a small cabin, but the difficulties of caring for it led to a low demand for such models.

      How to calculate?

      When drawing up the layout of the bathroom, you need to find its optimal size and configuration. On the one hand, the closet must accommodate sanitary and household appliances necessary for carrying out hygiene procedures and household chores. On the other hand, it should not occupy most of the housing.

      It is noticed: if there is the slightest opportunity to calculate the footage of the bathroom independently without external restrictions on dimensions, many homeowners think about a spacious room where you do not need to save every meter. But as practice shows, a large restroom is rather a waste of free space. If you adhere to the requirements of ergonomics, then the total required footage is calculated based on the following provisions:

      • for a shower you need 1.5-2.6 square meters. m;
      • for the bath - 2.4-3.5 square meters. m;
      • for a toilet with a tank — 1.3-1.9 m2;
      • for a washstand - approximately 1 m2.

      The minimum footage of the restroom, taking into account the requirements of remoteness of plumbing for a family of 4-6 people, is 7-9 square meters.

      It is desirable that this was a rectangular shape with a width of 2.4-2.6 m and a length of about 3.5 m.

      For an ergonomic layout of the shower and restroom you need to know:

      • standard sizes of toilets - 44x65, 40x60 or 36x65 cm;
      • the height of a typical bath is 64 cm with legs and 48-51 cm without legs;
      • the dimensions of standard bathtubs are 78-80x160 cm or 78-80x170 cm, corner models are 150x150 cm or 160x160 cm;
      • the size of shower cabins is 80x80, as well as 90x90 or 100x100 cm.
      • bidet parameters —37x54 or 40x60 cm;
      • minimum washbasin - about 40 cm wide.

      The sizes of bathrooms and closets for users with disabilities are calculated taking into account the parameters of the wheelchair.

      See how the toilet should look in the next video.

      Write a comment
      Information provided for reference purposes. Do not self-medicate. For health, always consult with a specialist.

      Fashion

      beauty

      Relaxation