Kitchen set

Dimensions of kitchen cabinets: what are and how to choose the right one?

Dimensions of kitchen cabinets: what are and how to choose the right one?
Content
  1. Standard dimensions
  2. How to calculate the parameters?
  3. Working triangle rule
  4. Blueprints

The kitchen is a place where large and small culinary masterpieces are created, the whole family gathers at the table. Attentive and thoughtful attitude to the choice of furniture will bring a positive result. The kitchen will become a place where it will be easy and pleasant to cook. Types of kitchen cabinets, their sizes and placement are important components in organizing an ergonomic workspace.

Standard dimensions

To create optimal conditions in the kitchen, the selection of suitable furniture is one of the main stages. Making the room cozy and stylish, we must remember that modern trends in design prefer saving free space and a minimum of decor. The consumer is offered the following cabinet options:

  • floor;
  • wall mounted;
  • angular;
  • embedded.

Difficulties in the selection of kitchen furniture begin when measuring the area of ​​the room, the height of the walls, the depth of niches, and finding out the parameters of the site that will occupy the suite. Often in a kitchen apartment there are small format or non-standard layout. Finding the right size cabinets and placing them compactly is a crucial moment in picking a kitchen. The standard of kitchen furniture on the market (dimensions are in centimeters) is as follows:

  • 60х60х80 for a floor curbstone with two doors;
  • 50х60х80 for a floor curbstone with one door;
  • 60x30x80 for hanging cabinets with 2 doors;
  • 60x30x40 for hanging cabinets with one door;
  • the corner section is trapezoidal with sides 60, 30.5 and 38.

According to the parameters, typical kitchen cabinets are suitable for built-in appliances.

  • The floor cabinet for the hob has an opening for installation of 49x60. Such a cabinet can be independently made from a standard.
  • For the built-in oven, the cabinet is equipped with a recess 59.5x59.5.
  • Other household appliances (an electric dryer, a dishwasher and a washing machine, a refrigerator, a freezer) are placed inside the cabinets and cabinets behind the facade in accordance with the individual dimensions: from the case to the cover there should be a backlash of 5 cm, for the refrigerator on both sides - from 1.5 to 3 cm, for other equipment, an exact entry into the cabinet is provided.
  • For a microwave oven, the cabinet is located on a raised platform in a niche. The back is open or with a backlash of 0.1 cm. The height of the cabinet is 2 cm lower than the microwave. So the lid will not be built in and can be easily opened.

It is recommended to purchase furniture for the kitchen after taking the dimensions (height and width) of each wall and corners. It is necessary to select the height of the headset and plan its placement, given the growth of the owner of the kitchen. Standard kitchens are designed for the growth of an average person, approximately equal to 1.68 cm. For low owners, hanging cabinets are recommended to be hung slightly below the standard level.

No matter how the wall drawers are hung, it will only be possible to reach the very top with the help of a stepladder. Deep cabinets are convenient; dishes and products, and possibly small or built-in appliances, will fit here. But if cabinets and cabinets clutter up the room, you will have to carefully approach the choice of size. Kitchen furniture is:

  • floor (curbstones, pencil cases);
  • wall (mounted).

Bottom row

Floor cabinets become the main part of the working area. They store dishes, products, and household appliances. They must be roomy and withstand the loads of work surfaces.

Standard parameters:

  • height - 85 cm;
  • depth - 46-60 cm;
  • tabletop thickness varies from 1.8 to 5 cm;
  • the width of the facade can be from 30 to 90 cm;
  • between the inner shelves the distance is from 20 cm, the most convenient is 40 cm;
  • the pencil case has a height of 150 to 230 cm in height, depth and width also vary.

The lower cabinets are covered with countertops and equipped with legs. The height of the legs can be adjusted. There are closed with doors and open types of cabinets. Cases are used for built-in appliances; there are standards for microwave and oven cases (60x59 cm), for a built-in refrigerator (60x59 cm), the height of the case can be any.

The depth and width of the floor furniture varies: for large kitchens choose deep and spacious cabinets from 90 to 120 cm, for small-sized prefer options of small depth, but not less than 46 cm, for a drawer - 45 cm.

It is not advised to make the work surface less than 45-50 cm, a rather wide countertop is required for the cooking process.

A table top of 60 cm is most common. The depth of the cabinet with such a working surface is 46 cm. A smaller tabletop format is inconvenient, since most built-in appliances are suitable for this size. Exceptions are small-sized kitchens, where large furniture clutters the area. And for such a room they choose small sinks and gas stoves.

For a spacious kitchen, a countertop up to 90 cm is suitable, the depth of the drawers in this case is possible up to 76 cm. Countertops 120 cm wide are suitable for an island or dining table. The island in the middle of the kitchen provides access to several worktops and cabinets.

How will the kitchen furniture stand, where and what to place, it is recommended to find out in advance in order to avoid unpleasant surprises later.

Top modules

In the hinged upper boxes they store not only dishes, but also products and spices. Medium-sized appliances (microwave, mixer, blender) can be placed in the upper cabinets. The purpose of using the wall cabinet affects the choice of its configuration and size:

  • height from 70 to 90 cm (the distance from floor to ceiling in apartments is different);
  • depth a little more than 30 cm, but 2 times less than the depth of the lower pedestal;
  • mounting height of wall cabinets from 180 to 250 cm (optimally about 210 cm).

Standard furniture is made taking into account the average height of ceilings and average human height. Of course, in small-sized apartments, the ceilings are low, and in private houses or in apartments of the Stalinist Empire, the ceiling height is more than 3 meters. In this way, furniture is better to choose and place in accordance with the parameters of each kitchen.

The width of the wall cabinets should match the width of the facades of the lower cabinets. In wall drawers from the lower shelves to the upper, the distance is 45 cm. You can place wall cabinets if the height of the owner exceeds average. Hanging completely low is not recommended, this creates inconvenience when using the work area.

Corner constructions

For a small kitchen, they prefer to install corner headsets. Corner cabinets and cabinets appear in them. They are rectangular, one of the parts will then be inaccessible for use, or in the form of a rhombus (with two doors or one). With this arrangement of drawers and pedestals, the angle is used to the maximum.

When choosing, take into account the following sizes:

  • headset height - from 180 to 250 cm;
  • the depth of the boxes is from 30 (upper) to 50 (lower) cm;
  • width - from 30 to 40 cm;
  • the width of the working surface of the countertop is not less than 46 cm.

The corner sections themselves differ in format from the rest, and the lower corner cabinets are larger than the hinged drawers.

Floor stand:

  • for washing or ordinary, on the sides 85-98 cm long (maybe 110-130 cm);
  • the width of the walls that are adjacent to adjacent pedestals is 50-60 cm;
  • the corner of the cabinet is beveled (47 cm) and a corner (56x56 cm);
  • corner pencil cases 37-50 cm in size on the wall, open side 17-25 cm, door width 30-34 cm.

Wall mounted cabinets smaller than cabinets:

  • on the sides of the corner cabinet - 55-60 cm;
  • walls adjacent to adjacent cabinets 30-35 cm long;
  • the width of the cut on the facade is 38 cm;
  • internal cut (if any) - 10-16 cm;
  • the internal angle is 28x28 cm, but may be larger, depending on the depth of the cabinet.

How to calculate the parameters?

Before you start collecting and arranging furniture, take measurements of the height and width of the kitchen. They draw a drawing with a plan and make the necessary dimensions there, taking into account important details, for example, the distance from the window to the wall and the height from the floor to the windowsill. It is recommended that you consider all possible installation options, especially if the kitchen is very small. You can enter all the parameters in a special 3D program and make the necessary markup in it.

They plan how to arrange kitchen cabinets, calculate their sizes for ergonomic design of the kitchen area and the distribution of work space.

When calculating take into account:

  • apron area (space between the countertop and the wall cabinets);
  • ceiling height;
  • size and layout of the kitchen;
  • dimensions of household appliances;
  • location of electric networks, water supply, ventilation.

A standard kitchen set is created with the calculation of the layout of an ordinary city apartment. The sizes of finished furniture of different production are approximately similar.

Furniture sets are:

  • modular;
  • embedded.

Cabinets are often equipped with special devices: for storing dishes, for drying plates, for decorating hoods or gas stoves, as well as niches for household appliances. Modular furniture is ready-made sections of a certain size: there are cabinets with countertops, chests of drawers, cabinets for washing, hinged open and closed shelves with one or two doors, corner floor and hinged models.

Blocks can be arbitrarily swapped by combining in any order. The damaged section can be replaced or, if necessary, removed completely. It is not difficult to choose cabinets for washing, dryer, household appliances. It is important not to make a mistake in size. The gas stove and refrigerator are not included in the modular sections, but are installed separately.

Built-in furniture is an atypical project involving the installation of special household appliances in the section, which are covered with the facades of the headset.Built-in cabinets and cabinets according to individual sizes, taking into account the general layout of the kitchen and the wishes of the owner.

Height

For kitchen floor cabinets and cabinets, the standard height is 85 cm. Most often, with the help of the legs, you can adjust the level of the countertop. For people of different heights, individually select the height of the working surfaces and wall cabinets. The height of the hinged drawer is from 70 cm, and place it so that it is easy to reach the handle and the lower shelf by hand.

Depth

For standing on the floor of the pedestals, the depth is 60 cm, taking into account the size of the facade, and without it - 46 cm. Custom sizes are less common - 120 and 90 cm. These parameters also take into account the protruding part of the countertop 3-5 outside and 5-10 cm on the part adjacent to the wall.

When calculating the depth of the drawers, the size of the built-in appliances should be taken into account: for a dishwasher - 575 mm, for a dryer in the upper cabinet - 300 mm, therefore, the dimensions with facades will be 565 mm for the lower and 320 mm for the upper cabinets.

For hanging cabinets, the depth will be 30 cm. It is better not to install deeper options above the working area, bulky wall drawers will hang over the countertop and create discomfort. For microwave and dryer, the depth can be 40 cm.

Width

The width of the floor drawers must comply with the following parameters (dimensions are indicated in centimeters):

  • 30-50 for a single door cabinet;
  • 60-90 for standard with two doors;
  • corner cabinets on the facade are from 45 cm.

Working triangle rule

According to this rule, you can ergonomically place a refrigerator, sink, stove. Additionally often installed and household appliances needed in everyday use. The shops offer furniture that is standard in terms of parameters, with proper selection and placement, you can create comfortable conditions in the kitchen. When creating a plan for placing furniture in the kitchen, you should consider:

  • general style of the room;
  • host preferences;
  • functionality;
  • placement of sinks, stoves and household appliances.

It is traditionally believed that an area for storing products, a place for washing dishes and cooking should form the vertices of a triangle, thereby facilitating the processing and preparation of products. The refrigerator, sink and hob (or oven) are installed so that they are always in easy access, and the distance between them was not less than 1.2 and not more than 2.7 meters. It does not have to represent a perfect equilateral triangle.

  • In the single-row kitchen, a sink is placed between the stove and the refrigerator. If possible, the refrigerator is taken out of the general row and placed on the opposite side.
  • In the kitchen, where the furniture is arranged in 2 rows, it is recommended to place the vertices of the triangle on both sides. On the one hand, there is a sink and stove, and on the contrary, a refrigerator or a refrigerator with a sink in one part, and a stove on the other.
  • L-shaped layout makes it possible to optimally place work surfaces. It is advised to put a stove and a refrigerator on the sides, and a sink in the center. As practice shows, you can place a stove, sink and refrigerator in a kitchen of this kind in a variety of ways.
  • The U-shaped kitchen has 3 rows of cabinets, with this configuration it is more convenient to arrange the sink in the middle row, and the remaining zones on opposite sides.
  • In the island kitchen, it is better to place the hob on the island, and on the opposite side put a sink and a refrigerator. You can swap the sink and stove.

In an ideal layout, the working triangle has equal sides. The presence in the kitchen of two people with the wrong arrangement of important areas will lead to confusion and may be unsafe.

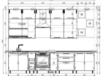
Blueprints

A close look at the various drawings shows that between the tops of the working triangle the length should be no more than equal to two outstretched arms. In the process of cooking, in addition to washing, stove, refrigerator, they also use cabinets and work surfaces.During the planning and placement of furniture, placement of equipment It is very important to make the correct calculations and place each element in the kitchen in a reach zone.

Floor tables should not clutter up the room and access to all functional areas. Hanging cabinets will accommodate dishes and products, will be located at a comfortable height and, when opened, will not interfere with the cooking and moving process.

The parameters of the kitchen set are selected taking into account the size and area of ​​the room, the location of windows, doors, ventilation, electricity and water supply.

When creating the layout of the headset in the kitchen, they decide in advance how the furniture, appliances, sink, stove will be arranged, the format of all the items listed is taken into account. It is very important to take the exact dimensions and indicate on the diagram all the important details. Creating your own drawing, it is useful to focus on existing layouts with dimensions.

For a corner kitchen, it is advised to start a drawing with a corner cabinet, then draw the rest of the floor cabinets with household appliances, and then hinged and non-standard. Kitchens of different layouts have their individual differences: niches, beveled corners, ledges or recesses, narrowed places. For such rooms, the cabinet purchased in the store is adjusted independently.

Or make to order with details of the required configuration, suitable for the format of the kitchen. The recess in the wall makes it difficult to arrange a standard cabinet, but the depth can be reduced by measuring and cutting the box. Furniture for placement in a niche is increased to the depth of the niche itself.

If the cabinets are located next to an electrical outlet or sewer pipes, you must leave these objects in the public domain. An arrangement diagram is applied to the drawing and, creating a project for the future kitchen, a dotted line shows its location. When installing the headset, it will be possible to remove part of the walls of individual cabinets and use the socket so freely, having easy access to water pipes.

See how to choose a kitchen.

Write a comment
Information provided for reference purposes. Do not self-medicate. For health, always consult with a specialist.

Fashion

beauty

Relaxation