Countertops

What should be the height of the countertops in the kitchen?

What should be the height of the countertops in the kitchen?
Content
  1. Headset Standards
  2. Tabletop height standards in other furniture
  3. How to calculate the level for your height?

In the eyes of an unenlightened person, working in the kitchen is an elementary and tireless process. But this is only at first glance. In work in the kitchen, the hostess uses up to 40 types of muscles of the entire muscle system of the body. The irrational organization of any work, including the kitchen, at times increases muscle load, leads to fatigue, followed by irritability, malaise, dissatisfaction with oneself and family members.

In this context, the optimal mode of work organization without fail includes a convenient and comfortable arrangement of the kitchen, where kitchen sets and their standards become the main factor.

Let's consider what parameters of kitchen sets are key from the point of view of ergonomics, as well as how to choose and install a set correctly, focusing not only on its external aesthetic characteristics and tastes, but also from the standpoint of preserving your health.

Headset Standards

The standard parameters of furniture designs, as a rule, are obtained empirically, focusing on operating experience. Often, various sizes and distances are determined using ergonomic criteria focused on the creation of work areas and recreation areas. The goal of ergonomics is to create a functional, comfortable and safe space for effective solutions and specific tasks.

In this context, the most correct and well-thought-out working kitchen area can save a housewife up to 30% of the time spent on cooking, as well as significantly reduce energy consumption, saving health and helping to maintain a good mood.

Standards of distance from the floor in kitchen sets are perhaps the key values ​​in the entire dimensional system applied to sets. Such standards are closely related to the physiological parameters of the human body and are designed to fully meet its needs.

The height of the countertop should correspond to the growth of a housewife, spending considerable time in the kitchen. Usually, the standard sizes of kitchen modules are obtained empirically or calculated in ergonomics from the calculation of the averaged female parameters. For a clear reason, the height parameters in different countries vary in the range of 10-15 cm.

Ergonomics offers two basic design options for solving the problem of creating the convenience and comfort of kitchen activities - the creation of single-level and multi-level kitchen structures.

Single level

It has been empirically established that when a user grows to 1.5 m, the location of furniture modules with tabletops at a height of 76-82 cm is optimal. Accordingly, with a growth of up to 180 cm - 88-91 cm; for people with a height of 1.8-2 m, the recommended parameter is about 100 cm. Practice shows that many manufacturers adhere to the standard size of 86 cm.

Often, standard values ​​do not fully satisfy the demanding and neat housewife. In these cases, there are a number of ways to fit the actual sizes to individual tastes. For example, with an insufficient level of countertop height in the kitchen, it is quite possible to bring it to the required values ​​yourself. This is achieved in several ways.

  1. By adjusting the special legs. Modern kitchen modules are often equipped with special legs, with which it is possible to increase the height of the headset by 3-5 cm. You can also mount suitable holders yourself. At the same time, the diameter of the legs should be at least 4 cm. Wide legs allow you to distribute the weight of the structure more evenly, ensuring its greater stability.
  2. A change in the thickness of the countertop itself. The modern market provides surfaces with a thickness of up to 150 mm, however, such dimensions are not entirely convenient for installing a meat grinder. Nevertheless, the possibility of adjusting the height of the countertop with its thickness, albeit within small limits, is present here. It is worth noting that massive surfaces are more resistant to damage and durable in use. In addition, it is more convenient to mount embedded equipment in arrays.
  3. Using a special pedestal. The method is used in the absence of the possibility of increasing the height of the finished kitchen module for a person of high stature or with visual zoning of the kitchen space.
  4. By separating the countertop from the headset using the “legs” or special side brackets. The method is used in the presence of tightly closed drawers, when free space is formed between the drawers and the countertop.

Multilevel

With this arrangement of special operating areas, each of them has an individual height. This non-standard approach pursues the solution of several problems:

  • the formation of more comfortable working conditions;
  • a significant reduction in the level of stress on the back;
  • if it is impossible to use standardized methods for installing countertops, the workspace is divided into zones.

Usually the total area of ​​the countertops is occupied by: washing, directly the working area, stove. In these cases, it is recommended to mount the sink 10-15 cm above the working platform, where the products are prepared and cut.

At the same time, it is better that the sink protrudes somewhat relative to the area of ​​the countertop or is located on its front edge, since the housewife will not have to instinctively lean forward while washing the dishes.

If it is not possible to lift the countertop, overhead sinks are used, installed on the finished surface, where a hole for draining water is cut out.

The hob in the multi-level zone is located slightly below the cutting zone, which creates convenience for moving hot kitchen items. In addition, it becomes possible to install the oven at the level of the human body, which reduces the risk of injuries and burns during the extraction of hot dishes from the cabinet. The cutting zone is left in its standard values.

Kitchen facilities, organized in different levels, are classified as non-standard options.

According to expert designers, these modules are the most popular today. Their advantages include: originality, ease of use, the ability to assemble in any interior.

As sales practice shows, most housewives make a choice in favor of countertops of different levels. Such ready-made modules have a high-set working area, since it is an independent zone, equipped with drawers in the base for placing different kitchen utensils in them. The highest point of the working surface can reach 115-130 cm. Design and manufacture of such sites is always carried out taking into account personal opinions and recommendations of the housewife.

Multilevel headsets can significantly relieve the spine due to a more uniform distribution of loads. In the course of work in such a kitchen, the hostess does not have to constantly be in the same position, since when moving around the room the poses will change.

In the process of choosing kitchen non-standard furniture and in its manufacture, a number of conditions must be taken into account:

  • washing and cutting surfaces must be placed at a certain height so that the housewife does not have to lean over during operations;
  • the approximate height of the surface should be at the level of the human belt;
  • the main working surface used to perform the most time-consuming manipulations should be located slightly above the main zone, which will reduce the load on the muscular system and spine.
  • the cooking zone is best planned at lower levels.

Thus, the approximate installation parameters of non-standard kitchen furniture will be:

  • for washing - 1 m high;
  • for the working surface - 0.9 m;
  • for the cooking zone, the height is approximately 0.8 m.

In the ideal case, the cutting surface should be similar to the height sink and be next to it, since all the cutting is pre-washed and cleaned. A relevant characteristic for this zone is its suitable area. The area where meat products are cut and the dough is kneaded should be located just above the lower back. Curly cutting is more comfortable to perform at a slightly higher height.

The most obvious advantages of non-standard kitchen furniture are in large familieswhere the diversity of family members in growth is natural.

As a rule, multi-level headsets are made to order, based on the wishes of the customer. There is an opportunity to add new elements to the design, as well as select any height for each of them.

Important! Of the minuses of different-level countertops, the possibility of injury due to grazing of objects located at different levels is noted. Therefore, in order to reduce the risk of inconvenient situations, the zones are separated by special sides located on the sides of the countertop.

It should be remembered that multilevel work surfaces are not entirely suitable for small kitchens.The possibility of acquiring this type of headsets is usually considered in the presence of large kitchens.

Tabletop height standards in other furniture

Standards for the size of countertops in the stand-alone elements of kitchen modules are brought to a certain standard, depending on the average growth of business entities. In some cases, when it comes to custom-made furniture, special methods of calculation, taken from practice, are used.

Washing

So, to select the height of the sink-cabinets for a certain height, there is a special algorithm. The height of the mistress is measured from the end of the elbow to the floor, then the previously measured fist length is subtracted from the result. The result obtained will be the optimal value for the height of the sink. This size is important to consider when choosing the height of the countertop, since the process of remaking and fitting inconvenient modules will require certain additional costs.

Hob

The cooking area is located slightly lower than other zones, since its height is increased by the dishes placed on it, located during the cooking process. The best option is a height of 82 cm. Having the value of the height of the sink, you can clarify the size of the surface for cooking, subtracting 10-11 cm from it.

To determine the optimal height of the plate can be empirically. Ergonomics experts recommend 80-83 cm. You can refine the recommended numbers by placing a high capacity on the last burner. And if the manipulations to stir and control the cooking process are convenient for the housewife, then this option will become the most acceptable.

Kitchen table

The standard value of the height of the kitchen table from the floor to the countertop (according to GOST) for people of average height is 165 cm. The desired size can be calculated by the algorithm: H = Rsr * Vgst / Rst,

H is the desired height;

Rav - the average growth of adult users;

Vgst - height according to GOST (750 mm);

Rst is the average adult height (1650 mm).

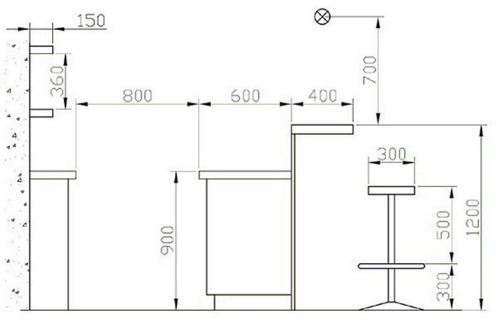
In designer kitchens of large sizes, in addition to working areas, recreation areas are often provided (for drinking cocktails and alcoholic drinks). When creating such zones take into account the posture of a vacationer at the counter (sitting or standing). It is important to foresee the types of seats planned for use in the home bar (special bar or regular chairs).

The standard height of the bar counter is 105 cm. Nevertheless, manufacturers often overestimate this value by 5-20 cm. This is due to the height of the bar seats, which are usually used in studio rooms as a conditional partition between the kitchen and the bar. Racks made as part of kitchen modules produce 15-20 cm less (taking into account the socle sizes and countertops - 86 cm).

Racks should be selected, taking into account the growth of each family member.

For tall people, the height should be more than 130 cm, but in these cases, it is possible to design multilevel surfaces. In addition, the height difference between the bar counter and the chair should be at least 30 cm. The racks included in the headset as its elements are usually 10-15 cm higher than the chairs.

How to calculate the level for your height?

Calculation of the level of furniture for a certain growth is inseparable from specification and selection of other sizes of kitchen modules:

  • the width of the opening for installing boxes;
  • height of the lower headset;
  • installation level of lower and wall cabinets, hoods;
  • apron sizes;
  • distance between countertop and drawers.

Although each parameter has its own standard values, additional individual measurements may be required.

So, in an approximate calculation of the lower kitchen module for a housewife with a height of 170 cm (standard height is 89 cm), the thickness of the countertop will be 4 cm, the height of the legs is about 10 cm, the height of the cabinets is about 75 cm. These figures must be taken into account when buying furniture from various manufacturers, and when it is self-assembled. Exceeding the height indicators of the countertops leads to discomfort during the operation of work surfaces.

The distance between the countertop and hanging drawers according to the standard should be maintained within the range of 45-60 cm. This size is the optimum for a complete view of the entire work area and maximum access to accessories in the hanging drawers. In this case, the distance to the hood will be 70 or more centimeters.

Calculations made with errors can lead to various negative consequences:

  • discomfort when using the working area and cabinets;
  • inconvenient location directly behind the countertop during production operations;
  • poor-quality (not level) headset installation.

Which countertop is better to choose, see below.

Write a comment
Information provided for reference purposes. Do not self-medicate. For health, always consult with a specialist.

Fashion

beauty

Relaxation