Kitchen layout

Layout and corner kitchen projects

Layout and corner kitchen projects
Content
  1. Where to begin?
  2. Layout and filling options
  3. Design development
  4. Features of designing a kitchen set for a small kitchen

Despite the fact that the kitchen in any project is considered non-residential auxiliary premises, there is probably no more “living” room in the apartment. It is in it that the family has breakfast in the mornings before leaving for school, for work, in kindergarten, and meets there in the evenings, discussing the events of the past day. In a word, this room cannot be exclusively functional, it must be cozy and comfortable.

Where to begin?

Creating an absolutely original, completely unlike design project is not an easy task, especially if you do not have the appropriate education. As for the simpler way - to find a finished design that is suitable in size and style and transfer it to your kitchen, this can be a great way out of the situation. The most important thing is to choose the right design, “fit in” with the estimated budget and the size of your kitchen.

Conventionally, the layout of the kitchen area can be divided into a number of steps:

  • the choice of the place where the furniture will be installed - a set, a table, a corner and chairs;
  • the choice of design in which the room will be decorated;
  • selection of color combinations;
  • the choice of types of wall decoration, ceiling, whether there will be an apron, etc .;
  • a decision on how the room will be lit;
  • choice of window openings.

If you know how to work in one of the computer applications on which you can develop and see how the room will look after repair, this is a big plus, since you can immediately get a visual representation of the proportions, sizes, and whether you like the future result or something needs to be adjusted.

What is especially valuable, such programs allow you to evaluate the view of the kitchen from above, and from different angles, twist the project as you like, that is, consider it properly.

After the three-dimensional result has completely satisfied you, you can begin to implement it.

Layout and filling options

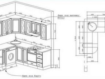
The angular layout is rightly considered the most economical and convenient, since it occupies the least useful area and at the same time, as a rule, is quite roomy. The kitchen “corner” consists of three main elements: the corner segment and two side. Accordingly, the location goes along two adjacent walls.

Usually, planning starts from the corner, gradually expanding to the desired size. The layout takes place in such a way that the hinged cabinets pass along the top, and the curbstones are located below.

Like any type of layout, the corner has advantages and disadvantages. The first include:

  • the ability to create an ergonomic working triangle;
  • compactness and at the same time the large capacity of headsets planned in this way;
  • the ability to arrange cabinets to your liking, equip them with smart fittings;
  • due to the angle, additional area is released;
  • due to space saving, it is possible to zone the kitchen, highlighting the dining and working areas.

Among the disadvantages, the following can be distinguished:

  • a corner is necessary, and roomy;
  • premises with a complex shape (niches, ledges, ducts, uneven walls) can cause difficulties with the location of the corner kitchen set;
  • in most cases, custom-made furniture is required, which significantly increases its cost.

As for the layout options, there are several. A classic is the one in which the headset is located on two perpendicular walls. It is the most convenient in terms of accommodation, as it is suitable for most kitchens. The equipment, including the built-in, and cabinets with shelves can be arranged and furnished as you want. This option can be either right-handed or left-handed.

The second type of layout is the presence of the peninsula. In this embodiment, one side of the headset passes along one wall, and the second does not touch any of the walls, while it is located at an angle of 90 degrees relative to the first side. This part, located freely, is called the peninsula. With its help, the kitchen is divided into the working area and the dining room itself. Installation of such a headset is possible only in large areas.

The third version of the corner kitchen is the one equipped with a breakfast bar. In a small-sized apartment, such stylish headsets sometimes look a little strange, but in a country house or apartments of a new layout, studios, "lofts" they will look appropriate, original and fresh. Especially valuable is the presence of a bar in families where long feasts are not provided, and a full dining area in the kitchen is not needed.

The most convenient is the layout that meets the requirements of ergonomics. And here the corner headsets occupy a leading position, regardless of whether the right or left wall is involved in the design. The working triangle principle is best suited to ergonomic requirements. At its tops are a refrigerator, a stovetop and a sink. By placing them in an isosceles triangle, you can minimize unnecessary movements in the process of cooking.

The more rationally organized the “triangle” is, the less time and effort it will take to prepare a meal.

Design development

The angle inside the headset can be beveled or straight. The first option is much more convenient, since it is easier to get into the interior of the cabinets with its help. This happens by simply opening the door. If a hob or sink is located in such a corner, then there will be enough space under it to place everything you want.However, it is not necessary to get involved in a too oblique angle; if you excessively “mow” it, the apron will be difficult to access. It is necessary to find the optimal module depth.

The design should not only meet the aesthetic preferences of the owner, but also be as convenient and comfortable as possible for all family members living in this apartment. That is, if this is a family in which they cook a lot, ergonomics should be at the highest level. It makes sense to stay on a hob with four or six rings if the family is large.

If the set is designed for a family or a person who practically doesn’t eat at home, but love parties, including home ones, then it will be right to organize a bar counter, it will also become a dining area. You will also need cabinets for glasses, wineglasses and wine glasses or a rack-holder for glasses, such as those equipped with bars. For wine connoisseurs, a wine cabinet can be harmoniously entered into the set.

As practice shows, the more small details and interests of the owner taken into account when designing a kitchen, the more convenient and comfortable it is in the process of use. As for the style of the interior, any of them provides an angular set in the kitchen. Whether it is classic, minimalism or provence, a kitchen made in this style will look great in a corner design.

Features of designing a kitchen set for a small kitchen

In kitchens of a small area, right angles are most often used. This, of course, significantly reduces the internal area of ​​the headset. To simplify the extraction of various objects from cabinets, you can use different options for internal design - folding or extendable shelves and cabinets. Small apartments also need maximum use of space, so the kitchen project with a mezzanine will be relevant, where you can place rarely used items that are not susceptible to spoilage due to high temperatures and smells of the kitchen. If there is opportunity and space, it is better to resort to the equipment of the bar counter.

If necessary, it can become an additional work surface, in addition, it will give additional chic to the kitchen, it will become a highlight of the interior.

In the next video, you will find the perfect layout of the corner kitchen.

Write a comment
Information provided for reference purposes. Do not self-medicate. For health, always consult with a specialist.

Fashion

beauty

Relaxation