Toilet bowls

Installation for a toilet: description, types and choice

Installation for a toilet: description, types and choice
Content
  1. What it is?
  2. System components
  3. Advantages and disadvantages
  4. Kinds
  5. Dimensions
  6. Manufacturers rating
  7. How to choose?
  8. Installation Recommendations

In the repair of an apartment, the conversion of the bathroom is often the most difficult. These works require special skills, and even if hired professionals are engaged in them, the question of choosing plumbing and accessories sometimes causes disputes in the family. And it happens that it is the choice of the toilet becomes a real stumbling block. They argue about the aesthetics of the model and the criteria for aesthetics, about modernity, comfort and so on. Fortunately, many questions are removed if the owners turn to toilet installations.

What it is?

If you want to beautifully fix the toilet in the toilet or in the combined bathroom, if you are already tired of seeing this zigzag pipe, a heavy tank, and you want to finally feel like a modern person, refer to plumbing installations for the toilet. Installation in this case is not a very large metal structure equipped with a reservoir, as well as a receiving neck. From it you can make a connection to the drain system. The entire product is located behind the false wall, behind it there are very powerful elements that make it possible to keep the toilet in actual weight.

This means that the plumbing will not actually stand on the floor, and this is an absolute advantage for maintaining cleanliness in the bathroom.

Installations are different, some are suitable in certain conditions, others are completely inapplicable in the same conditions. therefore Before buying such an expensive thing, you need to make sure that you understand the designs, clearly understand what you want. The basic principle of installation, for which the device is bought, is the disguise of not the most aesthetic components of the plumbing system. Water mains, flushing tank are hidden from the eyes. The flush design is located behind a special window with a button.

System components

If it is still not very clear what kind of system it is, a detailed analysis of its components cannot be dispensed with. All installations have a common unit - this is a flushing system. She herself is a panel with a button, a drain subsystem, a tank and a harness.

A flush plate is rarely found more than 20 cm in length, but also less than 10 cm in size. The widths are the same. This element has double functionality: it not only controls the drainage of water, but also decorates the inspection window, which is necessary for the repair of tank fittings. The buttons may be plastic, glass or metal.

Important! Do not leave the choice of button material for later. Often they begin to choose the installation from it, because it so happens that you already ordered the entire design, and the buttons come with it that do not fit the design of the bathroom.

Drainage devices may be as follows:

  • mechanical - the principle of a standard toilet bowl is repeated, the valve is opened by the influence of the pusher on the transmission system (everything is simple here, but simplicity provides reliability and the highest practicality of the device);
  • pneumatic - activation is due to compressed air, which is forced out of the flexible tank under the flush button as soon as it is pressed (the pulse passes to the tank fittings through an elastic pipe);
  • electronic - they have an automatic drive, the flush comes into action using an infrared sensor or by touching the touch panel.

Some manufacturers also offer today special economical systems - operating in two modes, as well as having a wash-stop function. Dual-mode systems offer the user the choice: you can drain all the water from the tank or only part. Devices with the flush-stop function are able to stop the process by a new press at any stage.

Tanks with flush mounting are made of plastic, so what their appearance will be is not so important. But what you need to pay attention to is the water supply side. If the model is inexpensive, then the water supply will be presented in only one version. If the model is expensive, there may be several ways. A good tank will also have a condensate isolation system, it will have a wide revision window.

There are modules without a tank: this means that the flush will flow. The flow comes directly from the water supply, and all this is controlled by a control system. The depth of such models, of course, is less, since there is simply no tank. The characteristic of flushing in such a situation depends on the pressure of tap water. The harness consists of an inlet and flush headset. And these are usually standard options that do not leave much choice. Unless you can see if there is a soundproof panel on top of the inlet pipe.

Advantages and disadvantages

So, installations are basically suspended aesthetic designs that seriously change the idea of ​​how a toilet should look.

The advantages of this design are undeniable and are as follows:

  • aesthetics of space - an ordinary toilet bowl, even a new and sparkling one, with just the appearance of a cistern makes a sense of harsh reality and unsightly intimacy of the room; the suspended structure is able to hide behind the panel all the treacherously detecting the essence of the device pipes, tank, communication nodes and so on;
  • the toilet does not get on the floor this means that you will not have to drill holes in the floor, as well as household items hinged, and not standing on the floor, always make the space more light, airy; if it is small, it can be important;
  • the floor and space under the toilet bowl is freed, in certain ways, this is also beneficial; for example, if you decide to equip a heated floor in the bathroom, then you do not have to go around the toilet for laying heating communications; again, when laying tiles, the process will be easier - if the toilet is floor-mounted, the stove will have to be cut, sometimes laying out unthinkable figures to bypass the toilet;
  • cleaning the room will also be easier, just washed the floor under the toilet bowl, and the space shines, smooth, without visible obstructions;
  • the noise level during the discharge of water will be significantly lower because the tank is masked behind a panel or false;
  • wall mounted toilet system associated with saving water - the user has options that can control the amount of discharged water;
  • finally, wall hung toilets are not so bulky like standard floor.

But there are also disadvantages to installations, namely:

  • such systems are not very easy to mount - during installation, it is necessary to fulfill certain conditions, take into account all the little things (how high the frame will be placed, what will be its position in the wall, how exactly communications will be brought);
  • the false wall behind which the entire technical component of the toilet is located closes it from being examined by specialists; if, for example, higher organizations decide to prepare your house for overhaul, then the false wall will probably have to be opened, all decorative elements and cladding will be removed, and then all damaged areas will have to be repaired again.

A hanging toilet, if you decide to acquire just such plumbing, is more expensive than a floor. And often decently more expensive. But these disadvantages are conditional. Overhaul may not be relevant, the owners have financial opportunities, specialists will take all the trouble: the owners of the updated bathroom will get a completely different look of the room with a delicate area.

And for modernity and relevance you always have to pay.

Kinds

It is very important to choose the right type of installation in each case. It will comply with aesthetic requirements, the characteristics of the room (size, design), ease of use. It is worth considering in more detail the main types of installations.

  • Block (mounted) module. Such a device includes an installation console on which the strapping and flush tank will be held. Such equipment can only be mounted on a major wall. It will be hidden in a niche (which is already there, or which will have to be hollowed out). After installation, the equipment is closed by a panel or completely walled up.
  • Add-on module. This option is even simpler than the first. At its core, it is a flush-mounted tank that is equipped with inlet fittings and brackets. It is installed in a niche, you can mount it on the rear wall and on the front. Since this module is the cheapest in the presented row, many people purchase it in order to hang the toilet specifically on a concrete screed or solid wall. How it will be durable, high-quality, reliable, depends on the professionalism of the master.
  • Frame. At the heart of this design is a rigid frame, which is made of thick-walled steel profile. It is he who takes on the weight of other elements (as well as the weight of the person who sits on the toilet). And he retains his form. Sometimes this design is called a frame. Reinforced frame modules help to install plumbing in any part of the room. Frame structures can also be mounted to a wall or floor.

At the installation site, installations for the toilet can be angular, two-sided, installed in a line, with a height limit. Corner installations help save space in a small bathroom. Bilateral ones retain the ability to install a toilet bowl on one side, and a bidet, for example, on the other.

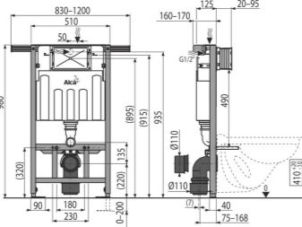
Dimensions

There are standard sizes. For example, frame models have a width of 50 cm, a height of 112 cm + 20 cm of extendable supports, and a depth of 15-30 (35 cm).Block designs are more compact, take up less space: the width is the same 50 cm, the height reaches 100 cm, but starts at 78 cm, the depth is no more than 15 cm.

Usually everyone needs a low design when it comes to installing the system under a window. Low and minimal models are widely represented - their height is 82 cm (such a parameter is enough to enter the intended space). And such models are interesting in that they have front and top flush plate placement.

There are many options for successful installations: you can find both thin and compact. The main thing is to choose a product from a seller with an excellent reputation. And to make it easier to find such a manufacturer, you can "walk" at a special rating.

Manufacturers rating

All the top lists have some compiler subjectivity, but if you analyze several ratings at once, it is easy to see which names wander from one parade of leaders to another. Consider the best installations for toilets.

  • Grohe. The German company collects the most eloquent reviews on the Internet. And they almost unanimously assure that you will make a profitable purchase. This high-quality components, and impeccable workmanship, and an absolutely understandable installation for the most detailed instruction. The design itself is lightweight, it can be mounted in any intended place. The drain tank is equipped with a silent dialing system.

What is not very pleasing is that the installation is bought separately, it does not come with the toilet. Another minus - the products of this company are often faked.

  • Cersanit. These are Polish installations, which in the reviews are considered to be of high quality, convenient, compromise in price terms. Unlike the previous product, they are sold complete with a toilet bowl and all necessary fasteners. They have a long warranty period. True, there are some disadvantages: fasteners do not always suit the buyer in length, and he simply does not fit into some rooms.

Spare parts may also raise questions.

  • Wisa. And this is no less famous Dutch brand, which is known as a large manufacturer of high quality sanitary ware. And every year the company introduces advanced technology. In their products you will find a special organic design, the latest technology, stringent quality requirements. Models are considered the most functional, equipment can be called durable. These installations have an attractive, silent drainage system.
  • Mepa. Another German manufacturer whose products are famous for its high-quality galvanized coating, resistant to high heat. This is a reliable brand, because its products have been in constant demand for half a century. The installation needs to be built into the main wall, there are models that can be mounted in a drywall partition. You can choose a model with a stop-start flush and a single flush. Through a special service window water is connected.
  • Geberit This manufacturer produces products for users with a lot of weight. Swiss designers specifically for obese users have developed a special powerful frame that can withstand considerable weight. It is cooked from a very thick profile. The installation has extendable legs, there are thrust plates with drilled holes for installation. The maximum load for which this installation is designed leaves 150 kg. The flush button in this model gives the user the choice of how much water to use - 3 l or 6 l. So a significant part of the load falls on the 20-centimeter studs, which makes it possible to mount the installation at a blank wall and between thin partitions.
  • AlcaPlast. For an apartment, this is perhaps the best installation economizer. Czech manufacturers supply very compact models that suit modest bathrooms. The model is inexpensive, without floor legs.The main load goes to the wall, and the system is attached to it. Therefore, fixing the model is possible strictly on brick walls, at least 20 cm thick. The installation looks like a metal frame with a strong corner placed below. It is to him through the false wall that the bowl is fixed with studs. The brand's most sought-after model has two drain modes, it is equipped with a height adjustment.
  • Vitra Blue Life. The model of this manufacturer (740-5800-01) is evaluated as an installation for complex, special cases. The Turkish company has made a design that meets the requirements of embedding the system in niches that are completely cluttered with communications. The design has a narrow frame with small legs, which makes it possible to mount the installation even in very limited spaces. The design weighs 18 kg. This model can be advised, as there are no questions about the quality of production and assembly, it will also be a profitable acquisition in terms of cost and reliability. Installation is simple, the warranty is valid for 5 years.

Certainly, these are not all brands declared on the market. But the companies listed above are more common than others, they collect more positive reviews. They do not just conquer the market, they have long become part of it. You can search for less well-known options, but their reputation will also be useful.

Although the name of the manufacturer is far from the only criterion by which the installation should be chosen.

How to choose?

When choosing such an interesting design, the buyer usually asks himself a few questions. And the answers to them narrow the scope of the search.

Questions that precede the choice may sound like this:

  • where you want to install the design;
  • whether a recess in the wall will be made in advance;
  • whether a suspension mechanism is required for the device, or is it only necessary to mask the tank;
  • whether additional material is needed to supply the necessary communications;
  • what material ideally should be made of keys.

Finally, you should immediately decide on the method of attachment. Wall construction is chosen more often than others. It is mounted to the wall with bolts and studs, the pressure falls on the rest. But floor installation is chosen if the partition is made of drywall. The support, therefore, goes to the floor, and the bottom of the structure is well reinforced.

When you choose a toilet for installation, a significant criterion will be the installation site. The corner module is triangular in shape, which is able to mask all the details. And this is a great model for a narrow bathroom. If the choice comes down to a two-way module, then the toilet can be mounted on one side, and the sink or bidet on the other.

You have to choose the right design, as well as evaluating the drainage system. For example, you can forcefully stop draining if you press the button again. A double key allows you to select a different water pressure. Touch devices are triggered by a movement of the hand.

If you choose a hanging toilet, look at how the headset is equipped yet in the market. There are complete sets with a bowl, but there are also without it. Of course, buying a full set is more profitable and more convenient, because all sizes will immediately coincide, this is a more reliable purchase.

And also, whatever option you choose (lateral or corner, attached, wall mounted, or maybe decided to transform the bathroom with a bezel-less toilet), it’s important to understand at least the basic thing about the operation of the entire system. It so happens that because of your ignorance, the seller stubbornly persuades to buy a certain model, indicating its indisputable advantages. But marketing is aimed at profit, and only then at objective advice. In order not to succumb to the tricks of the seller, be informed. For example, develop some installation myths for yourself.

Consider the myths about toilet installations.

  • At the slightest repair, the system will have to destroy the entire wall in the bathroom. This is an unambiguous exaggeration. If you (or plumbers) need access to the drainage system, they will receive it through the inspection window.It will open as soon as you remove the panel with the flush button. That is, to eliminate malfunctions in the operation of the shutoff valve, other parts of the valve, replacing them is not a big problem. During overhaul, as already noted, the construction will have to be removed.
  • If one system element fails, you can’t buy it anywhere. And this, too, does not seem to be true - it’s easy to find spare parts for popular models, they will certainly be in specialized markets. Finally, before buying, check with the seller how things are with the spare parts for a particular model.
  • Wall hung toilets are not the most durable products. And for overweight people this is definitely not an option. Just an option, and not bad, because this category of plumbing is fixed to a heavy-duty frame. The frame is built into the wall powerfully, so you can rely on its strength.
  • A hanging toilet takes up a lot of space, because one false wall is worth something. Suspended plumbing is mounted directly against the wall, and exactly the place that usually falls on the tank of a traditional model is allocated for the installation.

There is definitely a choice; most myths regarding installations are refuted. And if the design is acquired, the matter is small - call the craftsmen who correctly install it.

Installation Recommendations

Installation is carried out in strict sequence. If at least one stage is violated, there is no need to talk about the high-quality organization of the toilet installation.

  1. Installation. Exact marking is carried out, on which all fasteners are marked. Next, holes are made for fasteners. The installation itself is installed, in which the system is aligned horizontally and vertically, finally fixed in the designated place.
  2. Water supply and sewage. At this stage, plastic retainer clips are used to secure the pipes. Elements must have a tight connection.
  3. Installing the toilet itself. There is an exact adjustment of the connecting pipes between the installation and the plumbing. Pipes come complete with a toilet.
  4. Finish. The installation system is closed with something that can be considered a decorative finish. The most popular material is moisture resistant GCR. On it, in turn, lay the finish coating. It should be in harmony with the design of the bathroom.

If you still don’t know whether to purchase a regular toilet or to opt for a modern installation, just appreciate the main parameters of the proposed designs. For example, an ordinary toilet in a cramped toilet takes up almost the entire space. Of course, you get used to it, but when there is a more attractive choice, I want to use it. It is more convenient to clean the floor with the installation, and in general the design of the bathroom looks incomparably better with the installation.

If repairs to the toilet are only planned, if you decide to combine the toilet and the bathroom, you should take a closer look at the hanging toilets with disguised communications. If at the same time you see that it would be nice to install the structure in the corner, installation of a certain type will undoubtedly be the best choice for arranging a corner. Compact, convenient, highly aesthetic installations for toilets - this is what will appear everywhere in the near future.

At least many experts are sure of this and advise users to bring this technically modernized future closer.

See how to choose the installation for the toilet in the next video.

Write a comment
Information provided for reference purposes. Do not self-medicate. For health, always consult with a specialist.

Fashion

beauty

Relaxation