เคาน์เตอร์

เลือกระยะทางจากเคาน์เตอร์ถึงตู้ติดผนังในห้องครัว

เลือกระยะทางจากเคาน์เตอร์ถึงตู้ติดผนังในห้องครัว
เนื้อหา
  1. มาตรฐานคืออะไร?
  2. จริงเหรอ
  3. วิธีการคำนวณอื่น ๆ
  4. เคล็ดลับที่เป็นประโยชน์

ไม่จำเป็นต้องสงสัยเฟอร์นิเจอร์ในครัวเป็นสิ่งจำเป็นเนื่องจากคุณต้องกำหนดอาหารที่ไหนสักแห่งวางแหล่งอาหารและติดตั้งอ่างล้างจานสำหรับบางสิ่งบางอย่าง และทั้งหมดนี้ต้องใช้พื้นที่มาก ดังนั้นเราจึงมักจะได้รับชุดเฟอร์นิเจอร์สำหรับห้องครัว - จากเดสก์ท็อปไปจนถึงกล่องใส่ดินสอจากชั้นวางเหนือเคาน์เตอร์จนถึงตู้แขวนเต็ม เมื่อติดตั้งห้องครัวคำถามที่เกิดขึ้นตามธรรมชาติเกี่ยวกับความสูงที่ตู้แขวนและชั้นวางควรจะแขวนและสิ่งที่มันขึ้นอยู่กับ

มาตรฐานคืออะไร?

มาตรฐานมีอยู่เพื่อหลีกเลี่ยงการเกินความไม่พึงประสงค์ใด ๆ เกี่ยวกับความปลอดภัย (อัคคีภัยส่วนบุคคลสาธารณะและอื่น ๆ ) นอกจากนี้มาตรฐานยังได้รับการออกแบบให้คำนึงถึงความง่ายในการใช้งานของผลิตภัณฑ์และมาตรการที่เป็นไปได้เพื่อให้แน่ใจว่าอายุการใช้งานปกติ

เฟอร์นิเจอร์แต่ละชิ้นที่ซื้อจากผู้ผลิตที่เชื่อถือได้นั้นมีคำแนะนำในการประกอบและจำเป็นต้องระบุถึงความแตกต่างที่ผู้ซื้ออาจมีปัญหา ความแตกต่างเหล่านี้รวมถึงกฎและข้อบังคับสำหรับการติดตั้งตู้ติดผนังและชั้นวางของสำหรับเฟอร์นิเจอร์ครัวและเฟอร์นิเจอร์สำหรับวัตถุประสงค์อื่น ๆ ชุดซึ่งรวมถึงองค์ประกอบเหล่านี้

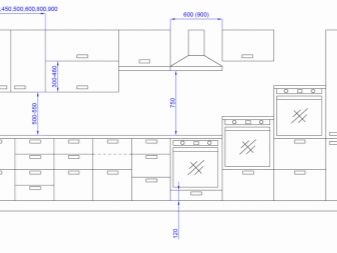
ดังนั้นผู้ผลิตเฟอร์นิเจอร์ครัวจำนวนมากแนะนำให้ตู้แขวนในระยะทางมาตรฐานจากเคาน์เตอร์ของเฟอร์นิเจอร์พื้นในช่วงจาก 450 (ขั้นต่ำ) ถึง 600 (สูงสุด) มิลลิเมตร

ตัวเลขมาตรฐานไม่ได้เกิดขึ้นตั้งแต่เริ่มต้น ทุกอย่างถูกคำนวณโดยไม่สุ่ม แต่เป็นการฝึกฝนการใช้งานเฟอร์นิเจอร์ประเภทนั้น ๆ มาดูกันว่าการพิจารณาระยะทางมาตรฐานที่ระบุนั้นขึ้นอยู่กับอะไร:

  • การติดตั้งและการใช้งานปกติของเครื่องใช้ในครัวเรือนมักตั้งอยู่บนตู้ล่างหนึ่งตู้หรือมากกว่านั้นถูกนำมาพิจารณา
  • มีการคำนึงถึงปัจจัยหลายประการที่ส่งผลกระทบต่อวัสดุของเจนเนอเรชั่นล่างของผนังตู้ติดผนังรวมถึงการปล่อยความร้อนและไอน้ำออกจากอ่างล้างจานเครื่องใช้ในครัวเรือนหรือเครื่องใช้ในครัวเรือนที่ยืนอยู่บนเคาน์เตอร์ของตู้พื้นตู้โต๊ะทำงาน
  • การเจริญเติบโตเฉลี่ยของผู้หญิงถูกนำมาพิจารณานั่นคือคนงานที่ไม่เหน็ดเหนื่อยของชีวิตในบ้านที่โดยทั่วไปห้องครัวทั้งหมดถูกจัดขึ้นเพื่อให้สะดวกและสบายในห้องครัว
  • ความสูงของเพดานของการก่อสร้างที่อยู่อาศัยทั่วไปก็มีส่วนร่วมในมาตรฐานของขนาดของการผลิตและการจัดวางชุดครัว

มาตรฐานคือมาตรฐาน แต่บางครั้งชีวิตก็กำหนดเงื่อนไขของตนเอง พิจารณาพวกเขาและบอกคุณว่าคุณสามารถออกจากสถานการณ์ที่ยากลำบากสำหรับการจัดวางตู้แขวนได้อย่างไร

จริงเหรอ

ผู้คนยังสามารถปฏิบัติตามมาตรฐานได้ ที่ความสูงขั้นต่ำที่แนะนำคือ 450 มม. จากเคาน์เตอร์ถึงขอบด้านล่างของตู้แขวนผนัง การลงไปด้านล่างแถบนี้มีราคาแพงกว่าสำหรับคุณ: เครื่องคั้นน้ำผลไม้ไม่พอดีเครื่องเตรียมอาหารไม่มีพื้นที่เพียงพอหรือแย่กว่านั้น - ฝาครอบของประตูตู้ด้านบนแตกโดยไอน้ำที่มาจากกาต้มน้ำ ทุกอย่างชัดเจนที่นี่

แต่ขีด จำกัด บนบางครั้งก็ถูกละเมิดโดยมีเจตนาร้าย ความจริงก็คือบ่อยครั้งในครัวหม้อไม่ได้ถูกควบคุมโดยผู้หญิงทั่วไป แต่โดยผู้ชายที่มีความสามารถในการกินและความรักที่ไร้ขอบเขตสำหรับห้องครัว บางทีผู้หญิง แต่มีการเติบโตที่เหมาะสมสำหรับวอลเลย์บอล ทั้งแม่ครัวจะไม่ชอบเฟอร์นิเจอร์ในครัวเพราะมันไม่พอดีกับความสูง - ตู้แขวนต่ำเกินไป

เราต้องโค้งงอเพื่อสังเกตพื้นที่ทำงานรับอาหารและเครื่องใช้จากส่วนล่างของตู้ติดผนังและอื่น ๆ

ดังนั้นเมื่อมีการวางแผนสถานที่ของตู้ติดผนังในสถานที่ลักษณะทางกายภาพบางอย่างของคนที่จะมีส่วนร่วมในห้องครัวส่วนใหญ่มักจะนำมาพิจารณา ยิ่งกว่านั้นการเติบโตของมนุษย์เป็นสิ่งสำคัญอย่างยิ่ง ประเด็นต่อไปนี้ถือได้ว่ายังคงเป็นปัจจัยสำคัญ:

  • ขนาดของผนังตู้
  • ขนาดของเครื่องใช้ในครัวเรือนที่ใช้
  • ความสูงของเพดานห้อง

ในการคำนวณความสูงของตู้แขวนไม่เพียง แต่ความสูงของผลิตภัณฑ์เหล่านี้เท่านั้น แต่ยังรวมถึงความลึกด้วย ยิ่งความลึกลดลงความสูงของการติดตั้งบนผนังก็ยิ่งมากขึ้นเท่านั้น

ในการเชื่อมต่อกับการเติบโตของบุคคลคุณสามารถให้คำแนะนำดังกล่าวเกี่ยวกับความสูงที่เหมาะสมสำหรับชั้นวางหรือตู้แขวน:

  • กับการเจริญเติบโตถึง 1.60-1.65 m ความสูงของตู้เป็น 1.70-1.75 m จากพื้น
  • หากการเติบโตอยู่ในช่วง 1.65-1.75 m ความสูงของการติดตั้งตู้คือ 1.80 เมตร
  • การเติบโตมากกว่า 1.75 เมตร - ตู้ที่ความสูง 2.0 เมตร

    ในขณะเดียวกันความสูงของตู้แขวนหมายถึงขอบล่าง จะต้องมั่นใจว่าช่องเปิดระบายอากาศไม่ใช่ตู้ปิด

      ในการเชื่อมต่อกับตัวเลขล่าสุดที่แนะนำสำหรับใช้เมื่อแขวนชั้นวางหรือตู้ของชุดครัวที่มีการปรับความสูงของคน ตัวชี้วัดระยะทางต่อไปนี้จากพื้นผิวของโต๊ะไปจนถึงขอบด้านล่างขององค์ประกอบเฟอร์นิเจอร์บานพับได้รับ:

      • ระยะทางขั้นต่ำมาตรฐานสำหรับผู้หญิงที่มีความสูงเฉลี่ย (สูงถึง 1.6 ม.) คือ 450 มม.
      • ระยะทางมาตรฐานสูงสุด (แนะนำ) - 600 มม.
      • ระยะทางที่แนะนำสำหรับบุคคลตั้งแต่ 1.60 ถึง 1.65 ม. คือ 800–850 มม.
      • ระยะทางที่แนะนำสำหรับการเติบโตจาก 1.65 ถึง 1.75 ม. คือ 900 มม.
      • ระยะทางที่แนะนำสำหรับบุคคลตั้งแต่ 1.80 ม. ขึ้นไปคือ 1100–1150 มม.

        ในขณะเดียวกันเราเชื่อว่าความสูงของท็อปครัวจากพื้นถึงพื้นผิวด้านบนของเคาน์เตอร์มีขนาดมาตรฐาน: 850–900 มม.

        วิธีการคำนวณอื่น ๆ

        สำหรับบางวิธีการคำนวณข้างต้นสำหรับการกำหนดความสูงที่แขวนของตู้ด้านบนในห้องครัวอาจดูเหมือนซับซ้อน (แม้ว่าจะไม่เป็นเช่นนั้น) ดังนั้นคุณสามารถใช้วิธีอื่นที่เรียบง่ายกว่า

        วิธีที่ 1

        พื้นฐานคือการเจริญเติบโตของนายหญิงของบ้านเพิ่ม 15-20 ซม. ในการเจริญเติบโตนี้ - นี่คือความสูงของชั้นวางหรือตู้แขวนผนัง โดยวิธีการ ผลลัพธ์ของวิธีนี้เกือบจะเหมือนกับการคำนวณก่อนหน้า. คุณสามารถตรวจสอบ

        วิธีที่ 2

        ผลลัพธ์ของวิธีนี้จะแตกต่างจากครั้งแรกเล็กน้อย แต่พวกเขาก็ยังดีที่สุดตั้งแต่ ตรงกับมาตรฐาน ที่นี่พื้นฐานยังถูกนำไปสู่การเจริญเติบโตของคนที่ส่วนใหญ่จะเป็นเจ้านายในครัว ความสูงของตู้แขวนผนังควรยืดออกตามแนวดวงตาของเขา สำหรับผู้หญิงที่มีความสูงเฉลี่ยบรรทัดนี้จะอยู่ที่ระยะทาง 60 ซม. จากด้านบนสุดของเดสก์ท็อป (ระยะทางมาตรฐานสูงสุด)

        ในกรณีที่ชุดครัวประกอบด้วยตู้บนสองระดับคุณต้องให้ความสำคัญกับขนาดโดยรวม แต่ถ้าตู้มาตรฐานในระดับหนึ่งมีขนาดความสูง 600-700 มม. ตู้ทั่วไปสองระดับจะรวมกันเป็น 800–900 มม.

        ขนาดนี้เข้ากันได้อย่างสมบูรณ์แบบกับมาตรฐานเมื่อตู้ติดผนังด้านล่างอยู่ห่างจากเคาน์เตอร์ 500 มม.

        เคล็ดลับที่เป็นประโยชน์

        โดยสรุปแล้วคำแนะนำสำหรับผู้ที่มีส่วนร่วมในการจัดเรียงเฟอร์นิเจอร์ครัวเป็นครั้งแรก รวมถึงตู้แขวนผนัง

        • ตู้แขวนเพียงอย่างเดียวเป็นธุรกิจที่เป็นไปได้ แต่มีความเสี่ยง ค้นหาคู่ค้าที่คุณต้องการเสมอ มิฉะนั้นจะไม่มีการรับประกันว่าตู้จะแขวนอย่างสมบูรณ์และสม่ำเสมอ
        • อย่าแขวนตู้ลงน้ำเหนือเตาพวกเขาจะไม่นาน: ไอน้ำน้ำมันและเขม่าจะทำให้งานสกปรก นอกจากนี้สิ่งนี้เป็นสิ่งต้องห้ามเนื่องจากอันตรายจากไฟไหม้ ควรวางเครื่องดูดควันไฟฟ้าไว้เหนือเตา มาตรฐานสำหรับระยะของบานพับคือ: อย่างน้อย 600 มม. จากพื้นผิวของเตาไฟฟ้าและ 700 มม. จากหัวเผาก๊าซ
        • พยายามอย่าคลุมผนังด้วยชั้นวางหรือตู้สูงถึงเพดาน - นี่จะช่วยลดขนาดของห้องครัว
        • ควรปรับตู้แขวนผนังอย่างระมัดระวัง - ไม่ควรมีช่องว่างระหว่างกันและตามส่วนประกอบด้านล่างควรเป็นเส้นตรงเส้นเดียว สำหรับสิ่งนี้อนุญาตให้มีการผูกมัดซึ่งกันและกัน
        • สำหรับอพาร์ทเมนต์ที่มีเพดานสูง 3 เมตรคุณสามารถสั่งตู้แขวนแบบกำหนดเองได้ซึ่งความสูงสามารถอยู่ระหว่าง 900 ถึง 1200 มม. ในห้องครัวที่สูงเช่นนี้พวกเขาจะมองเห็นได้ดีมากและเนื่องจากความสามารถของพวกเขาคุณสามารถเพิ่มพื้นที่ครัวจากเฟอร์นิเจอร์ที่ไม่จำเป็นได้เล็กน้อย (ตัวอย่างเช่นกล่องดินสอซึ่งไม่พอดีกับขนาดและลักษณะของการตกแต่งภายในโดยรอบ) จริงเพื่อที่จะได้อะไรจากชั้นวางบนของตู้ติดผนังคุณต้องใช้บันไดหรือเก้าอี้ แต่นี่เป็นเรื่องไร้สาระ
        • เมื่อเติมสิ่งของทุกอย่างกับตู้ติดผนังอย่าลืมขีด จำกัด ของความสามารถในการบรรทุก บางทีเขาสามารถทนน้ำหนักอย่างน้อย 50 กิโลกรัมหากน้ำหนักนี้กระจายอย่างสม่ำเสมอบนชั้นวาง แต่น้ำหนักของเขาอาจไม่สามารถคำนวณได้ โดยวิธีการอ่านคำแนะนำเกี่ยวกับการโหลดและพยายามที่จะยึดกับวิธีการและวัสดุที่แนะนำ

        ดูวิธีแขวนตู้ครัวด้านล่าง

        เขียนความคิดเห็น
        ข้อมูลที่ให้เพื่อการอ้างอิง อย่ารักษาตัวเองเพื่อสุขภาพให้ปรึกษากับผู้เชี่ยวชาญเสมอ

        แฟชั่น

        ความงาม

        การพักผ่อนหย่อนใจ