Kitchen set

Sizes of kitchen facades

Sizes of kitchen facades
Content
  1. Standard facade size
  2. Measure the parameters
  3. Custom furniture
  4. Corner cupboard
  5. We calculate the headset for the kitchen
  6. Bottom row
  7. Door and its dimensions

You can sit endlessly in good company in the kitchen for a delicious dinner and pleasant conversation. And in order to make the atmosphere suitable, you should choose the perfect facade of your own kitchen. Moreover, a good set is almost a 100% guarantee of the perfect dishes cooked on it. Therefore, it is worthwhile to choose the finishing of cabinets with special trepidation, paying attention to every detail, because the design and dimensions of the finished kitchen are bound to bring joy to the owners.

Factory headsets are often manufactured to common standards.. Typical sizes were determined by the operation of a considerable number of kitchens of various sizes.

Standard facades for kitchens are really suitable for most women, because it is quite aesthetic and meets all ergonomic requirements.

Standard facade size

Given the fact that the kitchens of most apartments have an area of ​​approximately 9 m², basically all factories working in the furniture sector prefer facades with standard dimensions.

Upper Cabinets:

  • height - from 50 to 90 cm;
  • depth - 30 cm;
  • width - from 40 to 80 cm.

Lower cabinets:

  1. countertop:
    • depth - 60 cm;
    • thickness - from 3 to 5 cm.
  2. cupboard:
    • width - from 240 to 80 cm;
    • height - 85 cm;
    • depth - from 40 to 80 cm;
  3. door swing - from 40 to 50 cm.

The gaps remaining between the cabinets indicate the size of the distance between the doors. The manufacturer himself sets the selected range, although there are no possible gaps in technological standards.

So, for a box having two doors, the gap is from 3 to 4 mm. This information indicates that From generally accepted standards, the amount of clearance should be subtracted.

Upper cabinets located one above the other assume a gap of 4 mm. Hence, the front height of each tier will be equal to the height of the cabinet with a deduction of 2 mm. In addition, it is necessary to take into account the space between the lower edge of the facade and the floor, equal to 10 cm.

When planning the installation of the cornice, it is worth remembering the height of the upper door, which coincides with the height of the entire body, minus 6 mm of the gap located under the cornice. Based on all of the above, there is a chance to personally calculate the dimensions of the facades for the kitchen. However, it is worth remembering about the nuances inherent in modules. Do not forget that for any headset you should make a personal calculation, which eliminates the likelihood of error.

It's important to know! Each manufacturer creates its own grid of standard sizes for headsets. Most of the positions coincide, since they are calculated according to generally accepted standards and take into account approximately the same kitchen appliances.

The most popular facade dimensions for kitchens can be seen in the table.

Swinging Doors

Drawers Drawer

Width mm

Height mm

Width mm

Height mm

396

496

140

296

396

596

140

396

570

296

140

446

570

396

140

496

570

446

140

596

570

496

283

296

570

596

283

396

713

296

283

446

713

396

283

496

713

446

283

596

713

496

713

596

900

296

900

396

900

446

900

496

Radius facade compositions, which are an excellent designer decoration of interiors and a roomy ergonomic element, have been very popular over the past few years. There are separate parameters for them:

  • height - 1316, 956, 716, 573, 536 mm;
  • the exact width matches the standard sizes shown in the table.

Measure the parameters

The modern furniture market offers not only the purchase of typical facades, but also the order of non-standard headsets having arbitrary sizes of modules. It is worth considering that the price of custom-made models will be 20-30% higher.

The cost increases due to the fact that to create one such part will require a complete reconfiguration of the equipment.

Typically, the customer has certain goals:

  • obtaining a kitchen set that fits into a specific room;
  • purchase of furniture at the lowest possible price;
  • reduction of production processes.

All these tasks are possible if the initial measurement was performed correctly. Choosing a model, you need to take from the manufacturers the tables of standard dimensions for the modules, because different companies offer their own unique dimensional grids.

Remember! The completed kitchen drawing plan with the calculation of the facades must be compared with the table. Try to compare the obtained sizes with the standard ones.

Therefore, you should select both the overall dimensions and the dimensions of the gaps, so that the final price will decrease by 20%. The fitting procedure will not completely relieve you of non-standard elements, but will reduce their number.

Custom furniture

Facades for headsets with non-standard dimensions are made to extraordinary sizes. Original product considered bent or radius type furniture products. The former are especially often used in Italian headsets or in combined ones. This solution increases the area of ​​use, and also improves the appearance of the product. In addition, this kitchen option has a long service life. In addition, the angles in the traditional versions are sharp, which is unsafe for families with children.

There are several nuances that must be considered when ordering such modules:

  • the curved design of the cabinets is heavier calculated;
  • the price will be higher.

Corner cupboard

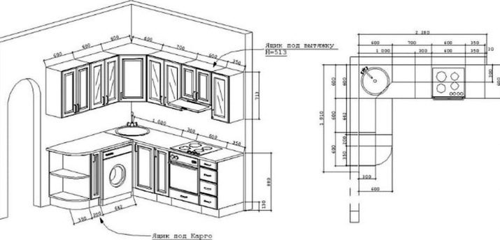
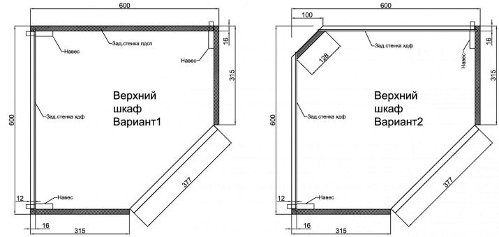
Independent arrangement of the kitchen space involves knowledge of the calculations of corner cabinets. The most common types are:

  • floor type with full dimensions;
  • classic stand;
  • hanging unit.

In order to correctly calculate the size of a single-wing swinging product with a straight back wall equal to the cabinet width, with dimensions 600x580 mm, it is necessary to use the following formula: F = √2P², where P = S-L-16 (S - 600 mm, L - 315 mm, 16 - chipboard thickness).

The resulting calculation result will be the facade width.

We calculate the headset for the kitchen

Facade parameters are not furniture dimensions. When planning a kitchen, be sure to consider the casement gaps, the thickness of the countertops and other indicators that help make the drawing true.

remember, that the gap in the cabinet with two doors will double. If a specific value is not found in the table provided, then it is possible to forgive from 2 to 3 mm or increase the size of the gaps by another 3 mm.

Bottom row

When determining the headset parameters of the cabinet located at the bottom, you should take into account the height that you need to measure. There is a chance of a compromise between indicators, given the fact that convenience will be considered more important than compliance with standards.

Let's say the height of the countertop that needs to be created must be 90 cm. It will include:

  • the casement gap that separates the countertop and doors is not less than 1 mm, but not more than 3 mm;
  • the height of the kitchen worktop - 26 mm, 36 mm, even reach 5.5-6 cm;
  • the casement gap located between the cornice located below and the casements is similar to the first parameter;
  • the length of the legs varies widely - it all depends on the taste of the customer.

    In cases where the value of the width of the row becomes too large, interesting details are set in the space formed. An additional 16 cm can be used to mount an element in which it is possible to easily place bottles or small bags and containers with spices.

    Door and its dimensions

    For correct calculations of the dimensions of the door, it is necessary to use the basic parameters of the ducts, taking away the amount of gaps from them. Suppose we have a box with a height of 72 cm and a width of 60 cm. By setting gaps not reaching 2 mm, we get a value of 596x716 mm.

    Thus, it is possible to correctly calculate all the required sizes, however, it would be advisable to initially familiarize yourself with the assortment and rely on the parameters of the table of furniture products of a particular company offering exactly those models that you liked.

    See how to measure a furniture facade correctly.

    Write a comment
    Information provided for reference purposes. Do not self-medicate. For health, always consult with a specialist.

    Fashion

    beauty

    Relaxation